Hamburg
Hebebrand District in Hamburg-Nord
Housing/ local amenities/ local recreation
Wohnen, Gewerbe, Naherholung
Freie und Hansestadt Hamburg
Plangebiet ca. 27 ha, BGF ca. 172.483 qm
2012
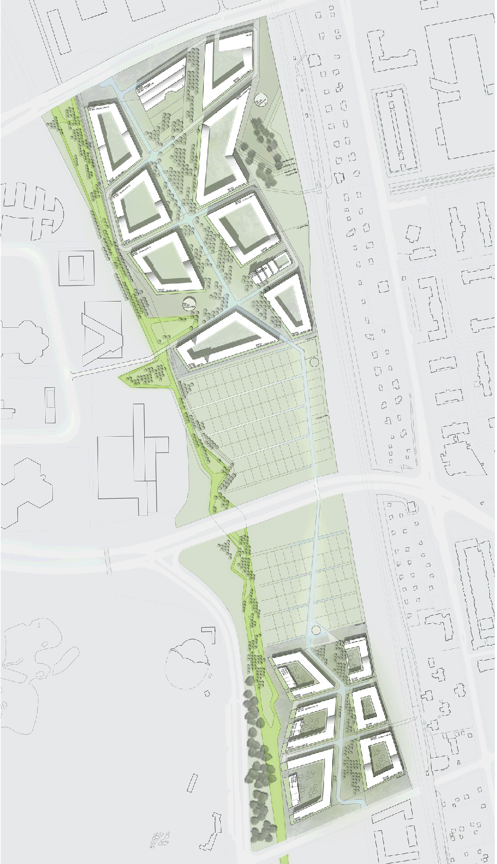
The Hebebrand District is a new residential district that is located between two contrasting boroughs—City Nord and North Barnbeck. Its residential buildings serve as a “hinge” between the low and dense urban fabric of the east, and the large-scale detached buildings in the west. On a functional level, the Hebebrandquartier continues in the mould of Barmdeck’s residential structure, while the proportions of its public spaces and building blocks follow the pattern of City Nord. In preserving Barnbeck’s urban structure, the new neighbourhood combines individual buildings and perimeter blocks, creating a lively and vibrant urban quarter. Simultaneously, the proportions and size of the particular building blocks, along with the public space itself, sit in harmony with the urban texture of City Nord. The perimeter blocks in the northern part of the district contain a mix of social housing and owner-occupied flats. At the same time, privately funded attached houses define the character of the south. Meanwhile, an existing cluster of allotments separates the northern and southern parts of the district.
Unlike the City Nord’s mono-functional commuter community, the Hebebrandquartier maintains diversity in its urban programs. This is best exemplified by the presence of a shopping centre, kindergartens, youth centre and a community centre for the elderly.
These amenities foster an intimate relationship between Hebebrandquartier and its neighbours, creating a socially sustainable community in the process.
The community buildings are located in and around the public squares, occupying unique locations within the new urban grid. Hebebrandquartier’s centre itself is defined by a sequence of public spaces, which form a central plaza that is adorned by an abundance of green areas. This verdant spine connects with the allotments, allowing the borough to breathe and influence the micro-climate of the surrounding area.
In collaboration with Florian Stanka / Stanka Landschaftsarchitektur.
